Mølleparken ligger i den sydlige del af Frederikshavn, lige op mod Bangsboskoven og tæt på både lystbådehavnen og dyreparken.
Der er med andre ord ikke langt til naturoplevelser og gåture ved vandet - alligevel er man tæt på byen med Bangsbostrand Skole, børnehaver, indkøbsmuligheder og gode busforbindelser i baghaven.
Langt størstedelen af de 700 boliger er familieboliger, hvor der bor både unge, familier og pensionister. Der er mange forskellige klubaktiviteter for både børn og voksne, som er med til at give et a ktivt miljø i dagligdagen, og der er mulighed for at leje både garager, gæsteværelser og festlokaler i afdelingen.
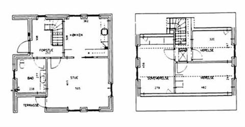
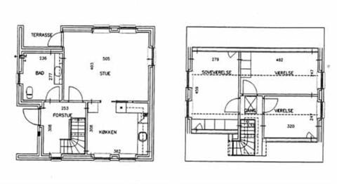
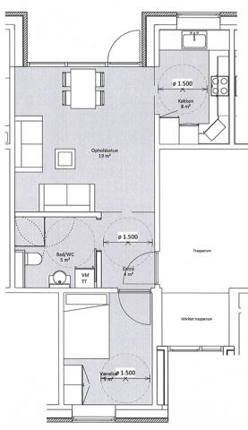
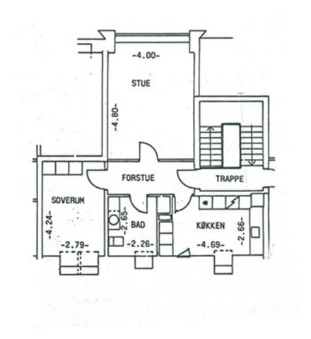
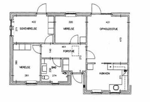
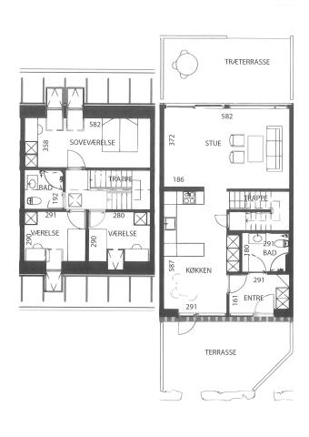
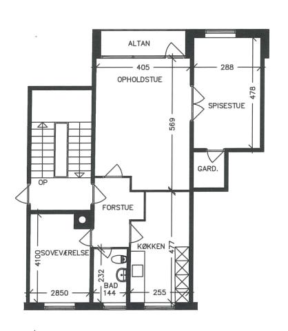
Hovedparten af boligerne er opført som etagebyggeri, og derudover består afdelingen af en stribe dejlige rækkehuse.
Alle boligerne på Provst Dreslersvej og Elius Andersensvej er blevet renoveret i 2014-2021, hvor klimaskærm og vinduer er blevet udskiftet. Desuden er der lavet nye badeværelser og nyt ventilationsanl æg. I forbindelse med renoveringen har afdelingen fået energimærke B, hvilket har reduceret varmeudgifterne med mere end 30%. Alle altaner er blevet bredere.
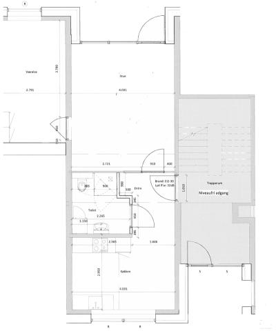
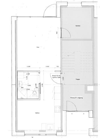
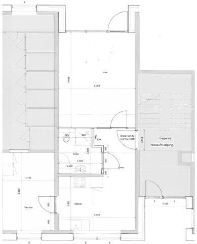
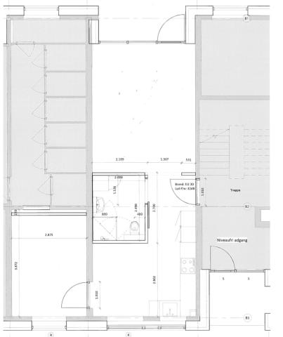
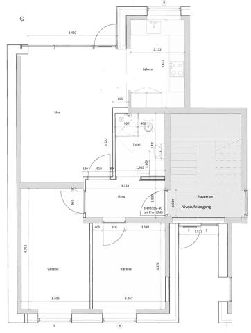
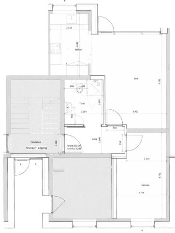
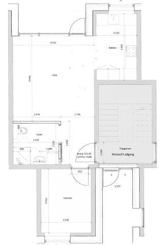
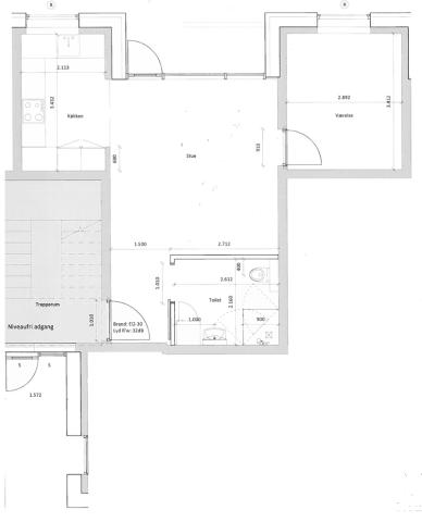
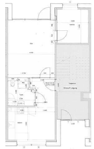
En del af boligerne i afdelingen er specielt indrettet til ældre, plejekrævende eller handicappede, hvor brede døre, bedre plads og niveaufri adgang blandt andet gør det muligt at bruge kørestol. Stør stedelen af disse boliger bliver visiteret gennem Frederikshavn Kommune.







