Afdeling 1 er Vesterports ældste byggeri. Beboersammensætningen er en skøn blanding af børnefamilier, unge mennesker og seniorer, hvilket giver en god alsidighed og dynamik i hverdagen.
Området har mange grønne oaser, legepladser til de mindste og en driftig afdelingsbestyrelse, som sørger for et væld af aktiviteter for alle aldre. Der er aktiviteter i løbet af året, som afdelingsbestyrelsen informerer om i beboerbladet samt ved opslag.
Det gamle Vesterport ligger centralt i byen tæt på adskillige skoler og med gode busforbindelser. Beboerne har mulighed for at leje garager og der er adgang til 1 gildesal som kan lejes ved henvendelse til Vesterport's administration. Der er ombygget gæsteværelser, som beboerne kan leje.
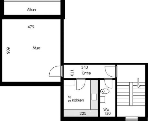
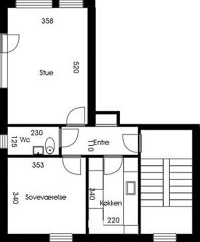
Afdelingen består af 538 boliger, hvoraf langt de fleste er i etagebyggeri, men et mindre antal er rækkehuse. Afdelingen er løbende renoveret. Over de seneste 10 år er en stor del af både køkkener og badeværelser blevet udskiftet, vinduer og tage er udskiftet næsten alle steder.
Helhedsplan for afdeling 1 godkendt.
På et ekstraordinært afdelingsmøde 7. oktober godkendte beboerne i afdeling 1 Det Gamle Vesterport en helhedsplan for afdelingen.
Udover energirenovering og opretning af byggeskader og nedslidte bygningsdele, omfatter helhedsplanen også en ombygning af 120 lejligheder til tilgængelighedslejligheder.
Renoveringen af afdelingen har et samlet budget på ca. 463 mill. kr.
Renoveringen forventes at påbegynde medio 2022 og forventes afsluttet ved udgangen af 2025.
I forbindelse med renoveringen vil afdelingens beboere være genhuset, mens der arbejdes i og omkring deres lejlighed. Afhængig af hvor omfattende arbejder der skal laves i den enkelte lejlighed bliver genhusningsperioden 3- 8 måneder.
Vesterport genhuser alle beboere i perioden, hvor din lejlighed skal renoveres. Kontakt administrationen ved spørgsmål på tlf. 9842 6111







