Fladstrandsparken ligger tæt på Plantagen, Frydenstrandskolen, gode indkøbsmuligheder og tæt ved centrum.
Byggeriet er opdelt i 3 kvarterer: Længehusene med 31 boliger, Gårdhavehusene med 25 boliger og Terrassehusene med 28 boliger.
Fladstrandsparken er et 2020- byggeri, hvilket betyder at boligerne er opført efter skærpede krav til isolering og energiforbrug.
Der er lagt vægt på at skabe rammer for gode naborelationer og et aktivt socialt liv.
I tilknytning til boligerne er der opført et Multihus med festsal, gæsteværelser og viceværtsfaciliteter.
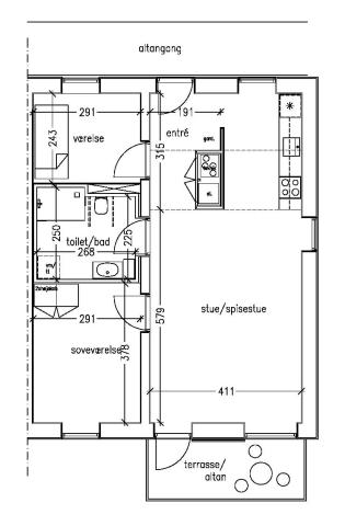
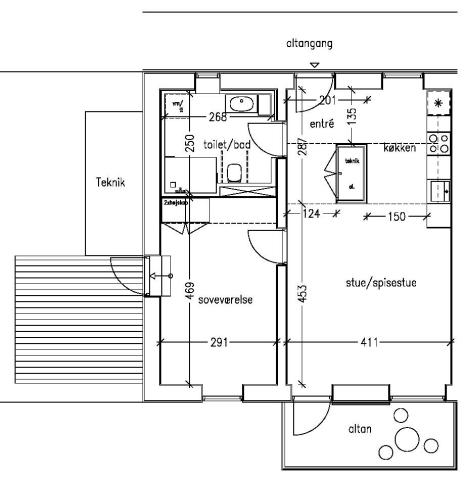
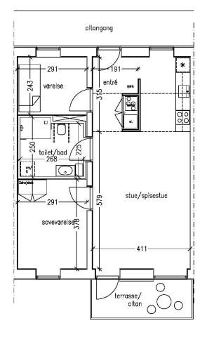
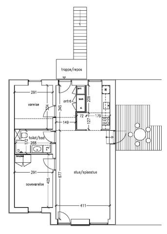
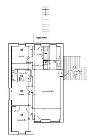
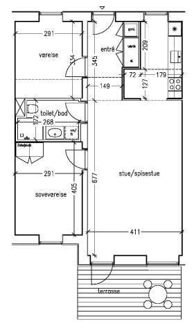
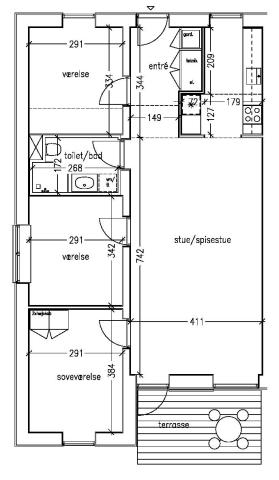
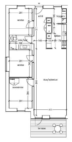
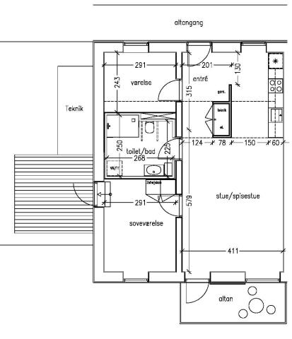
Længehusene og Gårdhavehusene Længehusene og Gårdhavehusene er tæt/lav bebyggelse med et-plans boliger placeret enten i stueplan eller på 1. sal.
Boliger i stueetagen har adgang til en flisebelagt terrasse på ca. 15 m2. Boliger på 1. sal har egen tagterrasse på cirka 10 m2 eller mere.
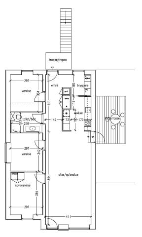
Terrassehusene Terrassehusene er etagebyggeri i fem plan opført i trappestil startende med fire boliger i stueplan og på 1. sal og afsluttende med en bolig på 4.sal.
Alle boliger i Terrassehusene har adgang til trapper, elevator og altan. Boligerne er særligt ældre- og handicapvenlige, da de er dimensioneret med større døråbninger, større venderadius og niveaufri adgang.
Der er desuden bygget 29 ældreboliger, som bliver visiteret af Frederikshavn Kommune. Boligerne er beregnet til psykisk og fysisk handicappede.







